5 locali in vendita

Genova, Via Cesare Cabella - Castelletto
€ 225.000
Prezzo aggiornato
5 locali 5 locali
115 Mq 115 Mq
2 bagni 2 bagni

5 locali in vendita

Genova, Via Cesare Cabella - Castelletto

Descrizione annuncio

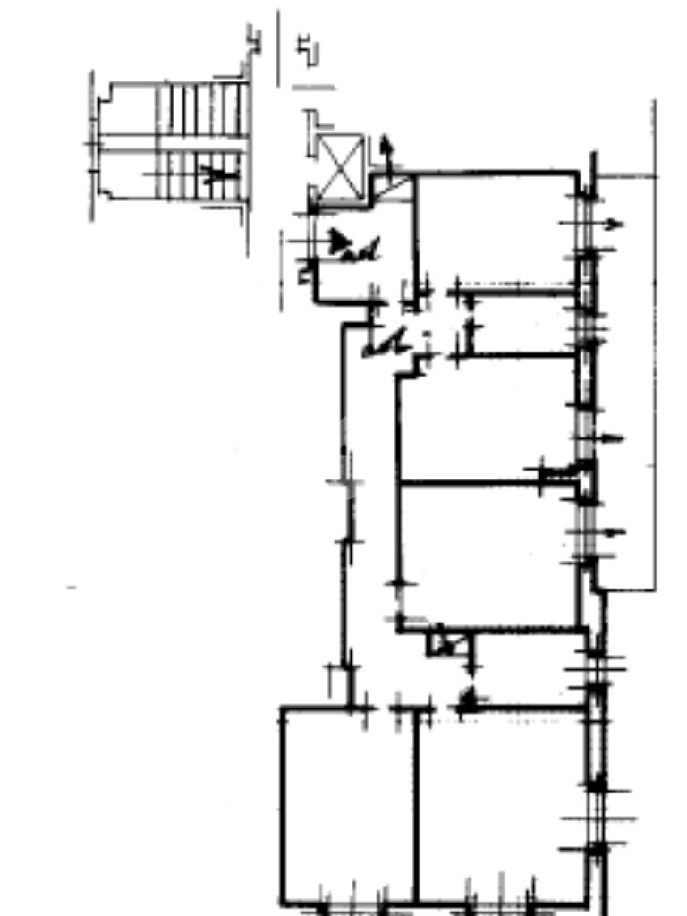
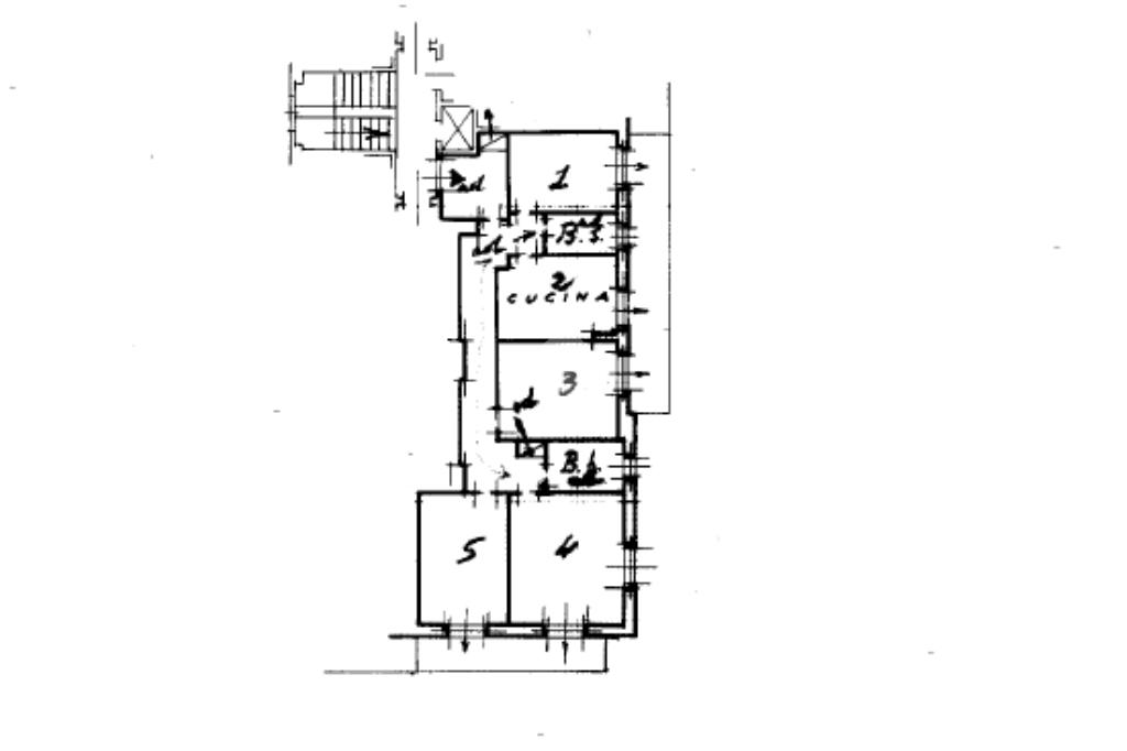
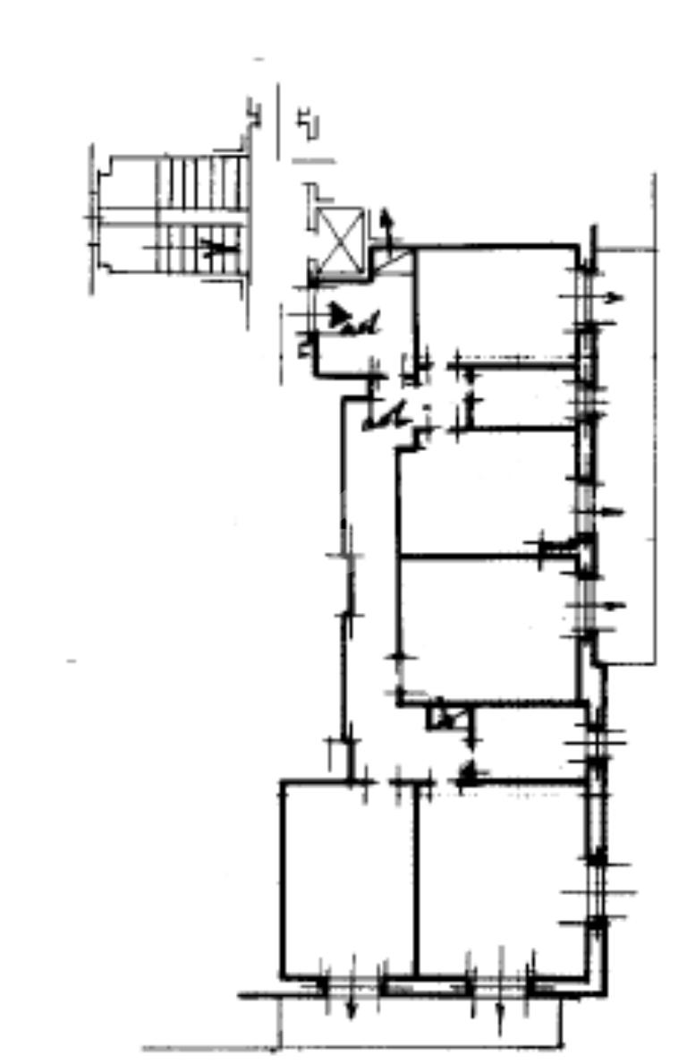
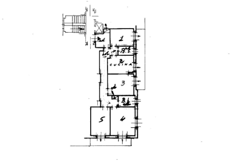
In una delle zone più apprezzate e residenziali di Castelletto, proponiamo in vendita un appartamento di 115 mq, situato a piano alto, con doppio accesso da Via Cesare Cabella e da Mura di San Bernardino, una posizione che unisce comodità, riservatezza e prestigio.

Varcando la soglia si viene accolti da ambienti ampi e luminosi, grazie alla favorevole esposizione sud-est che accompagna la casa per tutta la giornata. Il soggiorno si apre verso l’esterno attraverso uno dei due balconi, da cui lo sguardo si perde nel mare e nel cielo di Genova, regalando una sensazione di apertura e respiro difficile da trovare in città.

La zona notte è composta da quattro camere da letto, tutte ben dimensionate, ideali per una famiglia numerosa, per chi lavora da casa o per chi desidera spazi flessibili da dedicare a studio, ospiti o investimento. La cucina è separata e funzionale, servita da un secondo balcone, mentre i due bagni finestrati garantiscono comfort e praticità nella vita quotidiana. Completano la proprietà due comodi ripostigli, preziosi per l’organizzazione della casa e per ottimizzare al meglio gli spazi.

A rendere la proposta ancora più interessante vi è la presenza di un terrazzo condominiale sul tetto, uno spazio di grande valore e rarità nella zona. Un’area aperta, facilmente fruibile, che offre una vista ampia e dominante sulla città e sul mare, ideale per momenti di relax all’aria aperta, per godere del sole e della brezza marina o semplicemente per apprezzare, da una posizione privilegiata, il contesto unico in cui l’immobile è inserito.

Uno degli aspetti più interessanti dell’immobile è il suo enorme potenziale di personalizzazione: tutti i muri interni sono tramezze e la presenza degli scarichi su due lati distinti rende estremamente semplice ripensare gli spazi, creare una moderna zona giorno open space, redistribuire le camere o valutare soluzioni a reddito. Una casa che si adatta alle esigenze di oggi e di domani.

Il riscaldamento è centralizzato e le spese di amministrazione, comprensive di tutto, si attestano intorno ai 1.800 euro annui, un dato particolarmente interessante in rapporto alla metratura e alla zona.

Un appartamento luminoso, panoramico e versatile, inserito in un contesto di grande valore, dove la vista mare, il piano alto, la presenza di spazi esterni e la possibilità di trasformazione lo rendono una vera opportunità sul mercato di Castelletto.

Contattaci per una visita: alcune case non si spiegano, si devono vivere. Questa è una di quelle.

Mostra tutto

Nelle vicinanze

Trasporto pubblico Trasporto pubblico
Brignole
Brignole
840 m
De Ferrari
De Ferrari
1,3 Km
Genova Piazza Manin
Genova Piazza Manin
170 m
stazione di Genova Brignole
stazione di Genova Brignole
880 m
Cabella 3 / Passo Biscuola
Cabella 3 / Passo Biscuola
40 m
Ricariche auto elettriche Ricariche auto elettriche
Genova Zerbino | EnelX
240 m
Genova Pacifici | EnelX
380 m
Genova Marassi | EnelX
460 m
Genova Corso Magenta | EnelX
640 m
Genova Canevari | EnelX
660 m
Scuole Scuole
GGallery
90 m
Scuola secondaria 1° Ruffini
140 m
Scuola Infanzia Giovine Italia
150 m
Scuola Primaria Statale 'Giovine Italia'
160 m
Istituto Secondario Superiore Statale "Edoardo Firpo - Michelangelo Buonarroti"
380 m
Farmacia Farmacia
Farmacia del Castello
120 m
Farmacia Baudoin
160 m
Farmacia San Bartolomeo
280 m
Farmacia Chiappazzo
330 m
Farmacia Montaldo
330 m
Ospedali Ospedali
Ospedale Evangelico Internazionale
300 m
Ospedale Galliera
1,7 Km
Casa di Cura Villa Montallegro
2,0 Km
ospedale San Martino
2,2 Km
Clinica Villa Serena
2,2 Km
Supermercati Supermercati
E' il mio mercato
130 m
InCoop
200 m
Issimo
250 m
Eurospin
300 m
Supermarket Issimo
390 m
Negozi Negozi
Vecchio forno Fossati
120 m
Panificio Pasticceria Diego
150 m
Angelo
280 m
Negozi
450 m
Sapore del Peccato
530 m
Bar Bar
Bar Bertoli
50 m
Bar Michelangelo
110 m
Pino
270 m
Roxi Bar
300 m
Bar Pressing
330 m
Ristoranti Ristoranti
Trattoria Pizzeria Antola
50 m
Un punto macrobiotico
170 m
Ristorante Enoteca Il Genovino
240 m
Pizzeria Invexendo
310 m
Trattoria Mezzodì casalingo
420 m
Mostra tutto

Caratteristiche

Rif.:
61155379
Piano:
3 di 7 con ascensore (Piano medio)
Balconi:
2
Terrazzi:
1
Camere da letto:
4
Arredamento:
Parziale
Mostra tutto
Prezzo Prezzo
€ 225.000
Rata mutuo Rata mutuo
€ 1.060 / mese
Spese annue Spese annue
€ 1.800
Proponi il tuo prezzoProponi il tuo prezzo
Immobile valutato con T·Valuta

Classe Energetica

F
F
F
F
F
F
F
F
F
EP globale rinnovabile:
142.00 kW h/m² anno
EP invernale del fabbricato:
EP estiva del fabbricato:
Anno di costruzione:
1950
Riscaldamento:
Centralizzato
Tipo impianto:
A radiatori
Tipo alimentazione:
Metano

Prezzo ridotto di €1 (17%%)

Ti interessa visionare l'immobile?

Fissa un appuntamento  Fissa un appuntamento

Richiedi informazioni

Clicca su Leggi per aprire l'informativa
* Questi campi sono obbligatori

Calcola il tuo mutuo

Semplice e senza impegno
Anticipo

( % )
Mutuo

( % )

pochi semplici passi

inserisci i tuoi dati
Questionario completato
Grazie per aver richiesto un appuntamento senza impegno con un nostro Consulente del Credito e Assicurativo.

Hai inserito correttamente tutti i dati necessari e a breve riceverai una e-mail con un link da convalidare per inviare i tuoi dati.
Affiliato
Studio Castelletto Srl
Corso Carlo Armellini, 1/AR 16121 Genova (GE)

Il nostro staff


  • Kristo Germenji
    Affiliato
Corso Carlo Armellini, 1/AR 16121 Genova (GE)
Zona: Genova Castelletto
Mostra su mappa
Affiliato
Studio Castelletto Srl
Corso Carlo Armellini, 1/AR 16121 Genova (GE)

2026 Tecnocasa Franchising S.p.A. - P. IVA 08365160152 - Via Monte Bianco 60/A 20089 Rozzano (MI). Ogni agenzia ha un proprio titolare ed è autonoma. Privacy policy | Policy utilizzo | Cookie policy