Multilocale in vendita

Genova, Via Acquarone - Castelletto
€ 159.000
Prezzo aggiornato
7 locali 7 locali
110 Mq 110 Mq
1 bagno 1 bagno

Multilocale in vendita

Genova, Via Acquarone - Castelletto

Descrizione annuncio

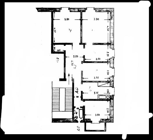
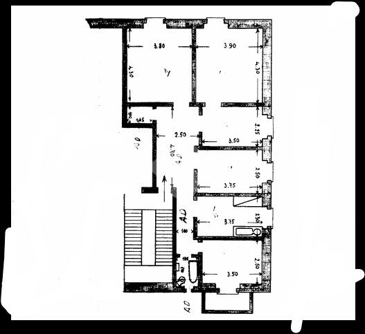
Nel cuore di Castelletto, in una delle zone più apprezzate di Genova per eleganza e tranquillità, proponiamo in vendita un appartamento di 110 mq posto al quinto piano, caratterizzato da grande luminosità e vista panoramica aperta sulla città.

La casa si sviluppa su spazi ampi e ben distribuiti:
ingresso, soggiorno, tre camere da letto, cucina separata, ripostiglio e due bagni.
Il riscaldamento autonomo garantisce comfort e gestione efficiente dei consumi.

Uno dei veri punti di forza è la posizione strategica: oltre all’ingresso principale, il palazzo dispone di un comodo secondo accesso da Via Cabrini. Da qui si raggiunge rapidamente l’ascensore di Via Crocco, che conduce direttamente in Corso Magenta, permettendo di arrivare in centro in pochi minuti, senza rinunciare alla quiete del quartiere.

Una soluzione ideale per chi cerca spazio, vista, luce e collegamenti rapidi, in un contesto riservato ma perfettamente connesso alla città.

Un appartamento da scoprire dal vivo: la visita è il modo migliore per apprezzarne il potenziale e il valore.

Mostra tutto

Nelle vicinanze

Trasporto pubblico Trasporto pubblico
Darsena
Darsena
1,0 Km
stazione di Darsena
stazione di Darsena
1,0 Km
Righi
Righi
740 m
Genova Piazza Manin
Genova Piazza Manin
880 m
Acquarone 2 / Ferrari
Acquarone 2 / Ferrari
30 m
Ricariche auto elettriche Ricariche auto elettriche
Genova Corso Magenta | EnelX
320 m
Genova Pacifici | EnelX
550 m
Eneldrive Piazza Marsala
710 m
Stazione a monte Funicolare del Righi | EnelX
730 m
Genova Mercato del Carmine | EnelX
740 m
Scuole Scuole
Istituto Santa Marta
290 m
Clemson Daniel Center for Building Research and Urban Studies
420 m
Scuola primaria Maria Mazzini
460 m
Liceo Linguistico Paritario Grazia Deledda
530 m
Scuola superiore di primo grado Don Milani - Colombo
580 m
Farmacia Farmacia
Farmacia IGEA
80 m
Antica Farmacia Sant'Anna
260 m
Farmacia
300 m
Farmacia ddlla Madonnina
330 m
Farmacia Saltarelli
480 m
Ospedali Ospedali
Ospedale Evangelico Internazionale
530 m
Ospedale Galliera
2,0 Km
Casa di Cura Villa Montallegro
2,7 Km
Clinica Villa Serena
2,8 Km
ospedale San Martino
2,9 Km
Supermercati Supermercati
E' il mio Supermercato
320 m
Carrefour Express
490 m
Supermarket Issimo
550 m
La Bottega SMA
570 m
E' il mio mercato
710 m
Negozi Negozi
Negozi
160 m
Focacceria Gastronomia Lo Spuntino di Castelletto
450 m
PAN Retrò
540 m
Laboratorio di maglieria la giuggiola
620 m
Il Forno di San Nicola
650 m
Bar Bar
Tullio l'Aperitiviere
320 m
Bar gelateria artigianale Antica Vaccheria
350 m
Oberti
510 m
Bar Caffaro
550 m
Gelateria graniteria Don Paolo
580 m
Ristoranti Ristoranti
La Funicolare
310 m
Ristorante I tre merli
330 m
Pizzeria Farinata La funicolare
350 m
Fuori Orario
480 m
Maniman
610 m
Mostra tutto

Caratteristiche

Rif.:
61163987
Piano:
5 di 7 (Piano alto)
Camere da letto:
3
Arredamento:
Assente
Condizionamento:
Autonomo
Ascensore:
No
Mostra tutto
Prezzo Prezzo
€ 159.000
Rata mutuo Rata mutuo
€ 742 / mese
Proponi il tuo prezzoProponi il tuo prezzo

Classe Energetica

G
G
G
G
G
G
G
G
G
EP globale rinnovabile:
124.00 kW h/m² anno
EP invernale del fabbricato:
EP estiva del fabbricato:
Anno di costruzione:
1950
Riscaldamento:
Autonomo
Tipo impianto:
A radiatori
Tipo alimentazione:
Metano

Prezzo ridotto di €1 (4%%)

Ti interessa visionare l'immobile?

Fissa un appuntamento  Fissa un appuntamento

Richiedi informazioni

Clicca su Leggi per aprire l'informativa
* Questi campi sono obbligatori

Calcola il tuo mutuo

Semplice e senza impegno
Anticipo

( % )
Mutuo

( % )

pochi semplici passi

inserisci i tuoi dati
Questionario completato
Grazie per aver richiesto un appuntamento senza impegno con un nostro Consulente del Credito e Assicurativo.

Hai inserito correttamente tutti i dati necessari e a breve riceverai una e-mail con un link da convalidare per inviare i tuoi dati.
Affiliato
Studio Castelletto Srl
Corso Carlo Armellini, 1/AR 16121 Genova (GE)

Il nostro staff


  • Kristo Germenji
    Affiliato

  • Clara Prela
    Coordinatrice
Corso Carlo Armellini, 1/AR 16121 Genova (GE)
Zona: Genova Castelletto
Mostra su mappa
Affiliato
Studio Castelletto Srl
Corso Carlo Armellini, 1/AR 16121 Genova (GE)

2026 Tecnocasa Franchising S.p.A. - P. IVA 08365160152 - Via Monte Bianco 60/A 20089 Rozzano (MI). Ogni agenzia ha un proprio titolare ed è autonoma. Privacy policy | Policy utilizzo | Cookie policy