5 locali in vendita

Genova, Salita Superiore di S. Rocchino - Castelletto
€ 179.000
5 locali 5 locali
75 Mq 75 Mq

5 locali in vendita

Genova, Salita Superiore di S. Rocchino - Castelletto

Descrizione annuncio

In posizione strategica, in Salita Superiore San Rocchino, a pochi passi dall’ingresso dell’Ospedale Evangelico e comodamente collegato con Corso Solferino, proponiamo un appartamento di 75 mq situato al sesto piano, molto luminoso e con vista aperta.

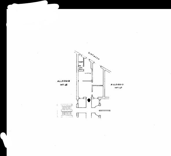
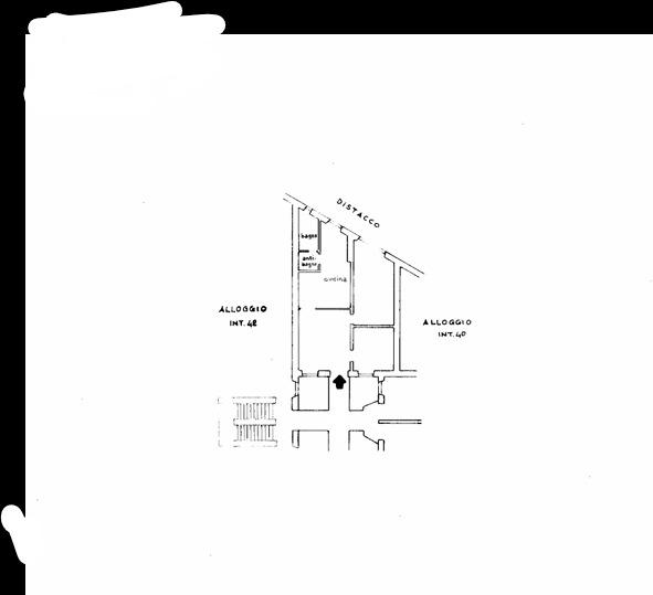
L’immobile è composto da:
- ingresso che si apre su un accogliente soggiorno
- camera matrimoniale
- cameretta
- cucina
- bagno finestrato

Il piano alto garantisce luce naturale durante tutta la giornata e una piacevole sensazione di apertura e tranquillità. Il riscaldamento è autonomo, mentre le spese condominiali contenute (circa €1.900 annui) rendono la gestione dell’immobile particolarmente conveniente.

La posizione è uno dei suoi punti di forza: si può arrivare comodamente con i mezzi fino al portone, e la vicinanza immediata all’ospedale rende questo appartamento perfetto sia per chi desidera viverci sia per chi cerca un investimento sicuro da mettere a reddito, grazie alla forte richiesta di affitti nella zona.

Una soluzione che unisce comodità, luminosità e grande potenziale.

Un appartamento che vale davvero la pena vedere di persona.
Contattaci per fissare una visita e scoprirne tutto il potenziale.

Mostra tutto

Nelle vicinanze

Trasporto pubblico Trasporto pubblico
Brignole
Brignole
900 m
De Ferrari
De Ferrari
930 m
Genova Piazza Manin
Genova Piazza Manin
560 m
stazione di Genova Brignole
stazione di Genova Brignole
880 m
Solferino / Ospedale Evangelico
Solferino / Ospedale Evangelico
50 m
Ricariche auto elettriche Ricariche auto elettriche
Genova Pacifici | EnelX
40 m
Genova Corso Magenta | EnelX
280 m
Eneldrive Piazza Marsala
370 m
Genova Mazzini | EnelX
470 m
Genova Zerbino | EnelX
500 m
Scuole Scuole
Scuola Primaria Paritaria Ist. Figlie di San Giuseppe
180 m
Istituto Santa Marta
320 m
GGallery
350 m
Liceo Linguistico Paritario Grazia Deledda
400 m
Liceo Scientifico Gian Domenico Cassini - Succursale
410 m
Farmacia Farmacia
Farmacia San Bartolomeo
210 m
Farmacia Baudoin
260 m
Farmacia Assarotti
300 m
Farmacia del Castello
340 m
Farmacia Giusti
390 m
Ospedali Ospedali
Ospedale Evangelico Internazionale
100 m
Ospedale Galliera
1,6 Km
Casa di Cura Villa Montallegro
2,3 Km
Clinica Villa Serena
2,3 Km
ospedale San Martino
2,5 Km
Supermercati Supermercati
Supermarket Issimo
50 m
E' il mio mercato
300 m
Carrefour Express
350 m
InCoop
490 m
La Bottega SMA
550 m
Negozi Negozi
Panificio Pasticceria Diego
270 m
Rivela & Co.
460 m
Vecchio forno Fossati
460 m
Jeanseria Drugstore
530 m
Negozi
580 m
Bar Bar
Bar gelateria artigianale Antica Vaccheria
340 m
Bar Michelangelo
350 m
Bar Bertoli
360 m
La Pausa
420 m
Jean Pierre
420 m
Ristoranti Ristoranti
Fuori Orario
90 m
Pizzeria Invexendo
220 m
Ristorante I tre merli
270 m
Ristorante Volta la carta
280 m
Vapensiero
310 m
Mostra tutto

Caratteristiche

Rif.:
61186691
Piano:
6 di 7 con ascensore (Piano alto)
Camere da letto:
2
Arredamento:
Assente
Condizionamento:
Assente
Ascensore:
Mostra tutto
Prezzo Prezzo
€ 179.000
Rata mutuo Rata mutuo
€ 848 / mese
Spese annue Spese annue
€ 1.900
Proponi il tuo prezzoProponi il tuo prezzo
Immobile valutato con T·Valuta

Classe Energetica

F
F
F
F
F
F
F
F
F
EP globale rinnovabile:
124.00 kW h/m² anno
EP invernale del fabbricato:
EP estiva del fabbricato:
Anno di costruzione:
1950
Riscaldamento:
Autonomo
Tipo impianto:
A radiatori
Tipo alimentazione:
Metano

Ti interessa visionare l'immobile?

Fissa un appuntamento  Fissa un appuntamento

Richiedi informazioni

Clicca su Leggi per aprire l'informativa
* Questi campi sono obbligatori

Calcola il tuo mutuo

Semplice e senza impegno
Anticipo

( % )
Mutuo

( % )

pochi semplici passi

inserisci i tuoi dati
Questionario completato
Grazie per aver richiesto un appuntamento senza impegno con un nostro Consulente del Credito e Assicurativo.

Hai inserito correttamente tutti i dati necessari e a breve riceverai una e-mail con un link da convalidare per inviare i tuoi dati.
Affiliato
Studio Castelletto Srl
Corso Carlo Armellini, 1/AR 16121 Genova (GE)

Il nostro staff


  • Kristo Germenji
    Affiliato

  • Clara Prela
    Coordinatrice
Corso Carlo Armellini, 1/AR 16121 Genova (GE)
Zona: Genova Castelletto
Mostra su mappa
Affiliato
Studio Castelletto Srl
Corso Carlo Armellini, 1/AR 16121 Genova (GE)

2026 Tecnocasa Franchising S.p.A. - P. IVA 08365160152 - Via Monte Bianco 60/A 20089 Rozzano (MI). Ogni agenzia ha un proprio titolare ed è autonoma. Privacy policy | Policy utilizzo | Cookie policy